Garden Blok 1

Stan Broj: 5 3 sobe 44.98 m2

  • Home
  • Detalji plana

Osnovne informacije

  • Status: Slobodan
  • Struktura: 3 sobe
  • Kvadratura: 44.98 m²
  • Sprat: Visoko prizemlje
  • Lamela: I Lamela

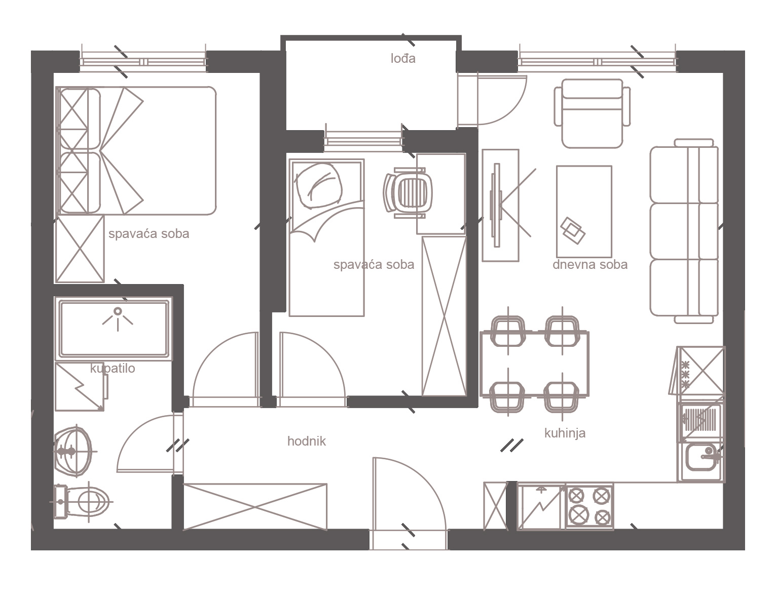
Struktura prostorija

# Prostorija m2
1 Hodnik 6.12
2 Kuhinja 6.64
3 Dnevna soba 10.70
4 Lođa 1.95
5 Spavaća Soba 7.23
6 Spavaća Soba 8.38
7 Kupatilo 4.45

Ukupna kvadratura

44.98

Trenutni status

Slobodan

Dodatne pogodnosti

  • Lift
  • Parking
  • Centralno grijanje
  • Podzemna garaža
  • Toplotna Pumpa
Lokacija objekta Garden Blok 1, Filipa Višnjića Bijeljina
Podijeli:

Kontakt

Za sva pitanja smo tu Vama na raspolaganju

O nama

Mihajlović invest doo je kompanija osnovana 2017.godine u gradu Bijeljina sa ciljem da razvije moderan koncept stanovanja uz primjenu najviših standarda u projektovanju i gradnji.

© Mihajlović Invest. Sva prava zadržana.