Garden Blok 1

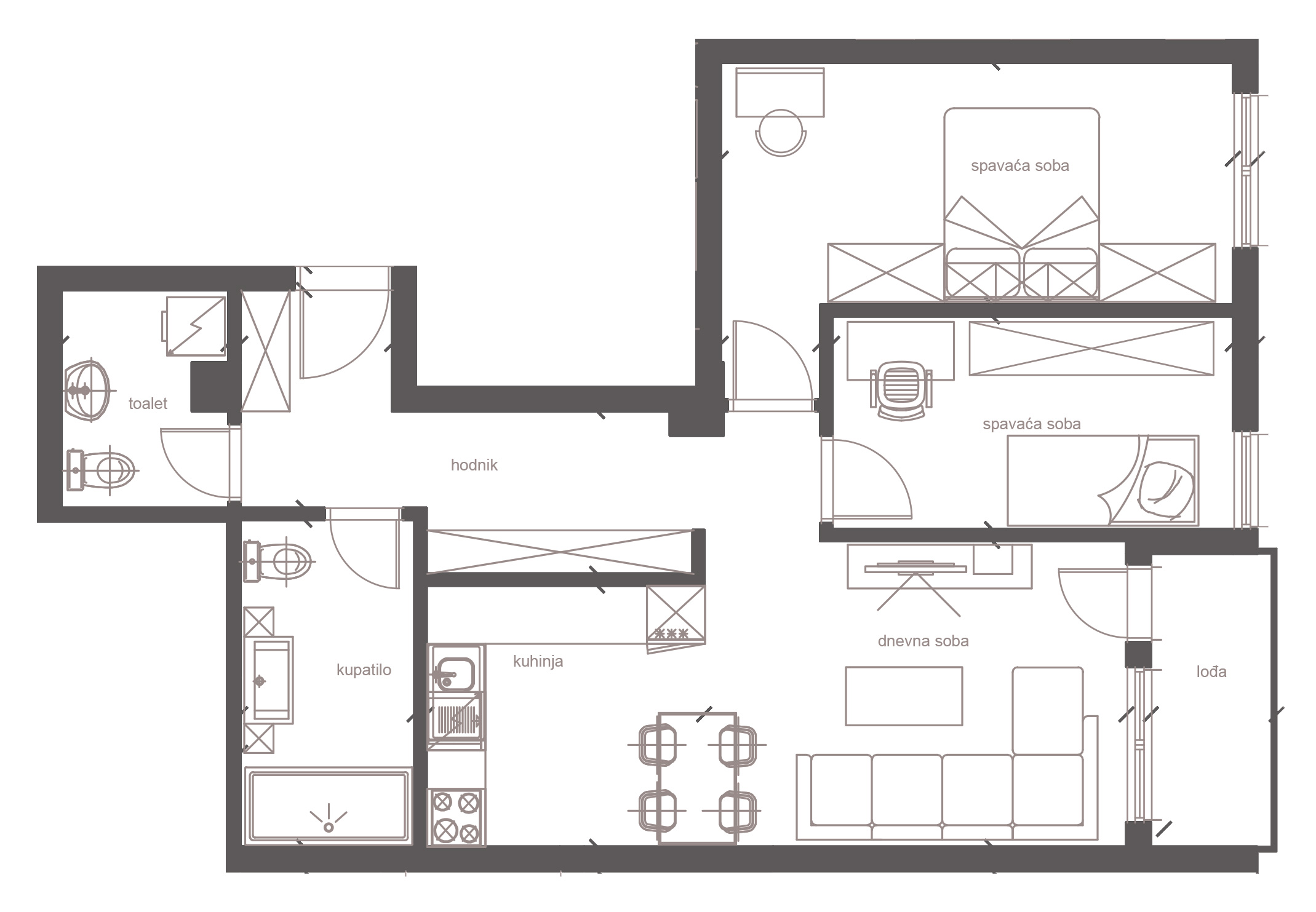
Stan Broj: 10 3 sobe 67.03 m2

  • Home
  • Detalji plana

Osnovne informacije

  • Status: Slobodan
  • Struktura: 3 sobe
  • Kvadratura: 67.03 m²
  • Sprat: Visoko prizemlje
  • Lamela: I Lamela

Struktura prostorija

# Prostorija m2
1 Hodnik 10.12
2 Kuhinja 7.74
3 Dnevna soba 13.77
4 Lođa 3.11
5 Spavaća Soba 9.10
6 Spavaća Soba 14.19
7 Kupatilo 6.08
8 WC-Vešeraj 3.70

Ukupna kvadratura

67.03

Trenutni status

Slobodan

Dodatne pogodnosti

  • Lift
  • Parking
  • Centralno grijanje
  • Podzemna garaža
  • Toplotna Pumpa
Lokacija objekta Garden Blok 1, Filipa Višnjića Bijeljina
Podijeli:

Kontakt

Za sva pitanja smo tu Vama na raspolaganju

O nama

Mihajlović invest doo je kompanija osnovana 2017.godine u gradu Bijeljina sa ciljem da razvije moderan koncept stanovanja uz primjenu najviših standarda u projektovanju i gradnji.

© Mihajlović Invest. Sva prava zadržana.