Promenada blok 4

Stan Broj: 4 2 sobe 40.49 m2

  • Home
  • Detalji plana

Osnovne informacije

  • Status: Slobodan
  • Struktura: 2 sobe
  • Kvadratura: 40.49 m²
  • Sprat: I Sprat
  • Lamela: IV Lamela

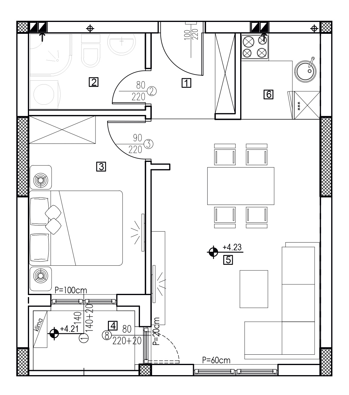
Struktura prostorija

# Prostorija m2
1 Hodnik 3.53
2 Kupatilo 4.23
3 Spavaća Soba 9.70
4 Lođa 2.78
5 Dnevna soba sa trpezarijom 18.98
6 Kuhinja 3.15

Ukupna kvadratura

40.49

Trenutni status

Slobodan

Dodatne pogodnosti

  • Lift
  • Parking
  • Centralno grijanje
  • Podzemna garaža
  • Toplotna Pumpa
Lokacija objekta Promenada blok 4, Kanal Dašnica Bijeljina
Podijeli:

Kontakt

Za sva pitanja smo tu Vama na raspolaganju

O nama

Mihajlović invest doo je kompanija osnovana 2017.godine u gradu Bijeljina sa ciljem da razvije moderan koncept stanovanja uz primjenu najviših standarda u projektovanju i gradnji.

© Mihajlović Invest. Sva prava zadržana.