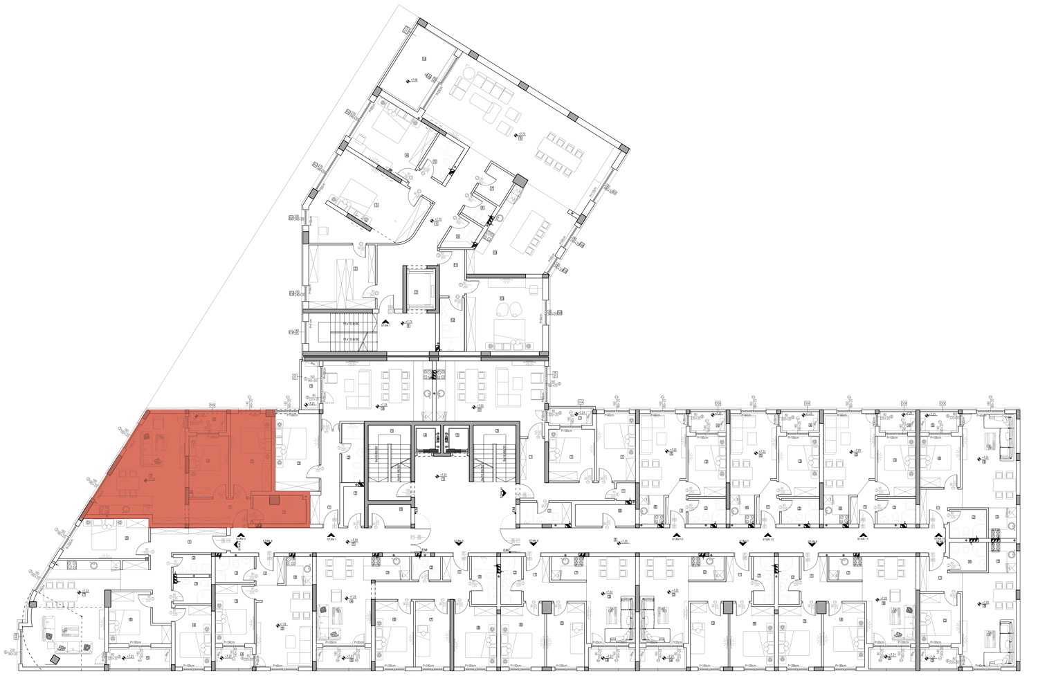
Promenada blok 4

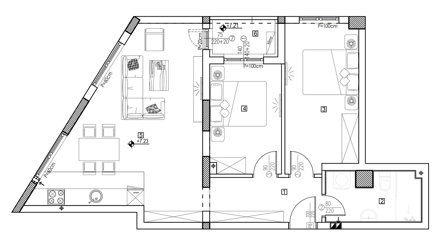
Stan Broj: 2 3 sobe 66.10 m2

  • Home
  • Detalji plana

Osnovne informacije

  • Status: Slobodan
  • Struktura: 3 sobe
  • Kvadratura: 66.10 m²
  • Sprat: II Sprat
  • Lamela: IV Lamela

Struktura prostorija

# Prostorija m2
1 Hodnik 6.64
2 Kupatilo 6.04
3 Spavaća Soba 13.67
4 Spavaća Soba 10.05
5 Dnevna kuhinja i trpezarija 29.63
6 Lođa 2.74

Ukupna kvadratura

66.10

Trenutni status

Slobodan

Dodatne pogodnosti

  • Lift
  • Parking
  • Centralno grijanje
  • Podzemna garaža
  • Toplotna Pumpa
Lokacija objekta Promenada blok 4, Kanal Dašnica Bijeljina
Podijeli:

Kontakt

Za sva pitanja smo tu Vama na raspolaganju

O nama

Mihajlović invest doo je kompanija osnovana 2017.godine u gradu Bijeljina sa ciljem da razvije moderan koncept stanovanja uz primjenu najviših standarda u projektovanju i gradnji.

© Mihajlović Invest. Sva prava zadržana.