Promenada blok 4

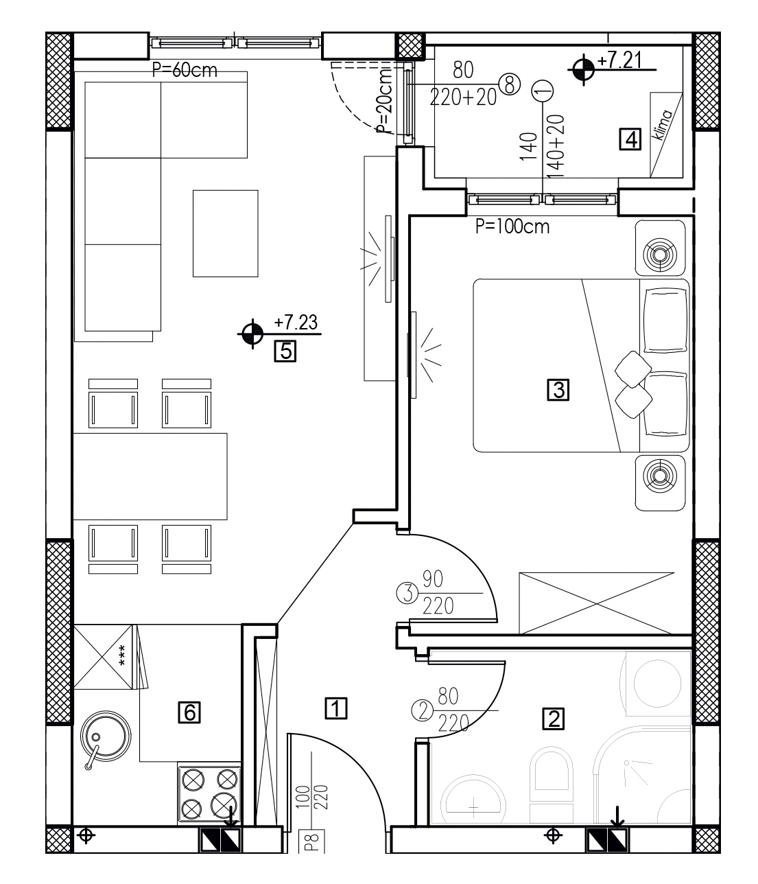
Stan Broj: 12 2 sobe 37.09 m2

  • Home
  • Detalji plana

Osnovne informacije

  • Status: Slobodan
  • Struktura: 2 sobe
  • Kvadratura: 37.09 m²
  • Sprat: II Sprat
  • Lamela: IV Lamela

Struktura prostorija

# Prostorija m2
1 Hodnik 3.68
2 Kupatilo 4.15
3 Spavaća Soba 10.31
4 Lođa 2.83
5 Dnevna soba sa trpezarijom 14.96
6 Kuhinja 2.95

Ukupna kvadratura

37.09

Trenutni status

Slobodan

Dodatne pogodnosti

  • Lift
  • Parking
  • Centralno grijanje
  • Podzemna garaža
  • Toplotna Pumpa
Lokacija objekta Promenada blok 4, Kanal Dašnica Bijeljina
Podijeli:

Kontakt

Za sva pitanja smo tu Vama na raspolaganju

O nama

Mihajlović invest doo je kompanija osnovana 2017.godine u gradu Bijeljina sa ciljem da razvije moderan koncept stanovanja uz primjenu najviših standarda u projektovanju i gradnji.

© Mihajlović Invest. Sva prava zadržana.