Promenada blok 4

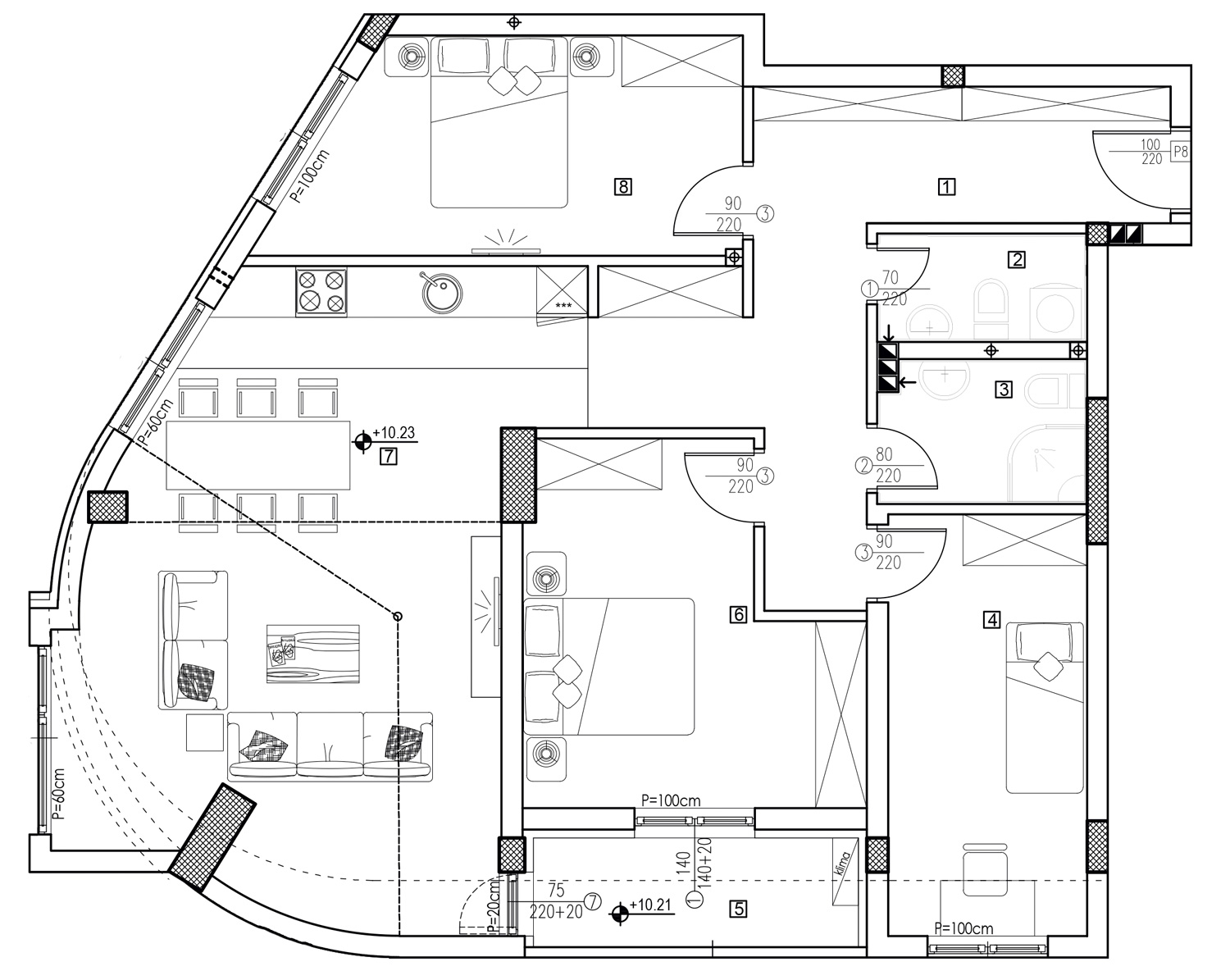
Stan Broj: 3 4 sobe 100.87 m2

  • Home
  • Detalji plana

Osnovne informacije

  • Status: Slobodan
  • Struktura: 4 sobe
  • Kvadratura: 100.87 m²
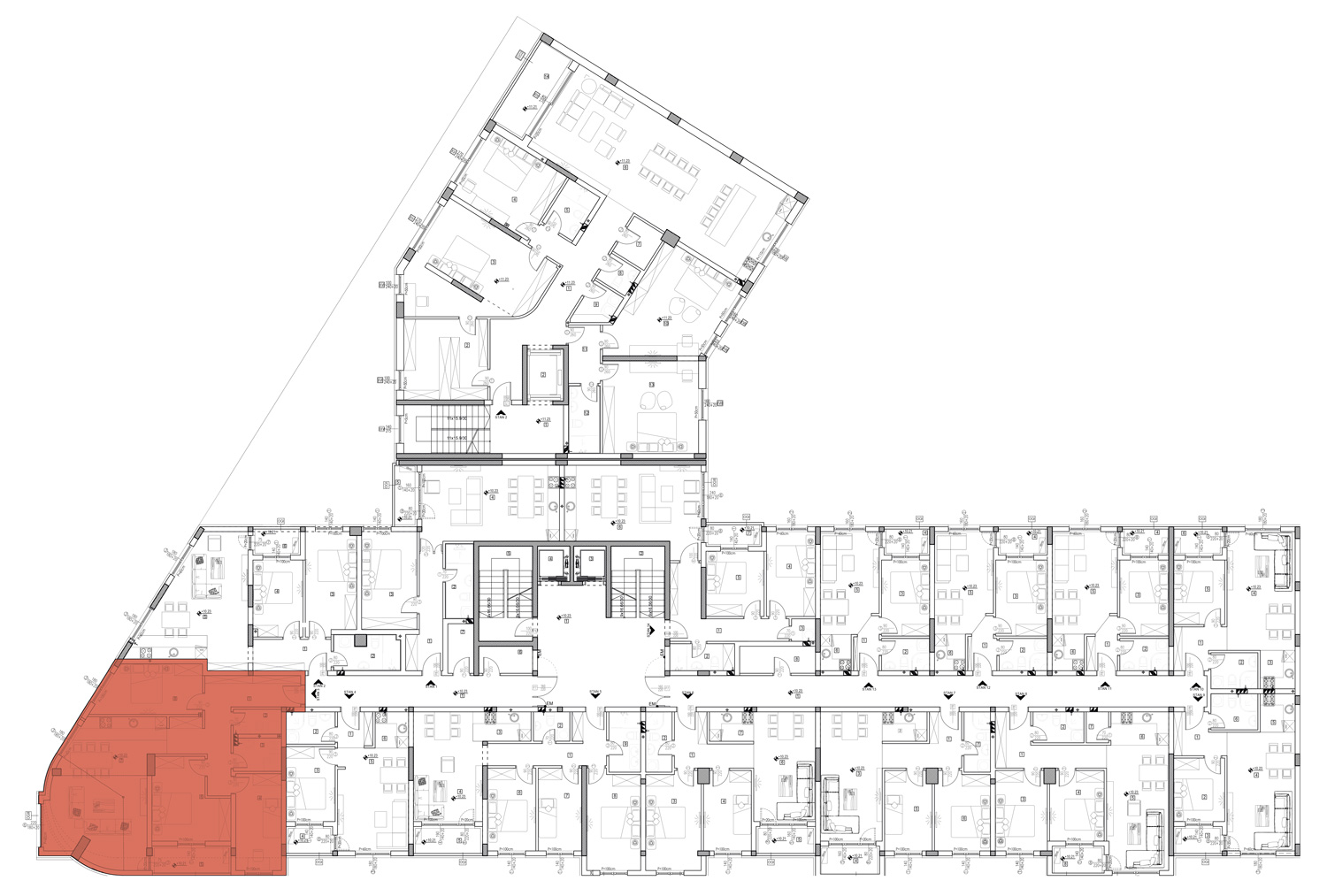
  • Sprat: III Sprat
  • Lamela: IV Lamela

Struktura prostorija

# Prostorija m2
1 Hodnik 17.38
2 Toalet 3.20
3 Kupatilo 4.18
4 Spavaća Soba 11.73
5 Lođa 4.90
6 Spavaća Soba 14.60
7 Dnevna kuhinja i trpezarija 36.13
8 Spavaća Soba 12.99

Ukupna kvadratura

100.87

Trenutni status

Slobodan

Dodatne pogodnosti

  • Lift
  • Parking
  • Centralno grijanje
  • Podzemna garaža
  • Toplotna Pumpa
Lokacija objekta Promenada blok 4, Kanal Dašnica Bijeljina
Podijeli:

Kontakt

Za sva pitanja smo tu Vama na raspolaganju

O nama

Mihajlović invest doo je kompanija osnovana 2017.godine u gradu Bijeljina sa ciljem da razvije moderan koncept stanovanja uz primjenu najviših standarda u projektovanju i gradnji.

© Mihajlović Invest. Sva prava zadržana.