Promenada blok 4

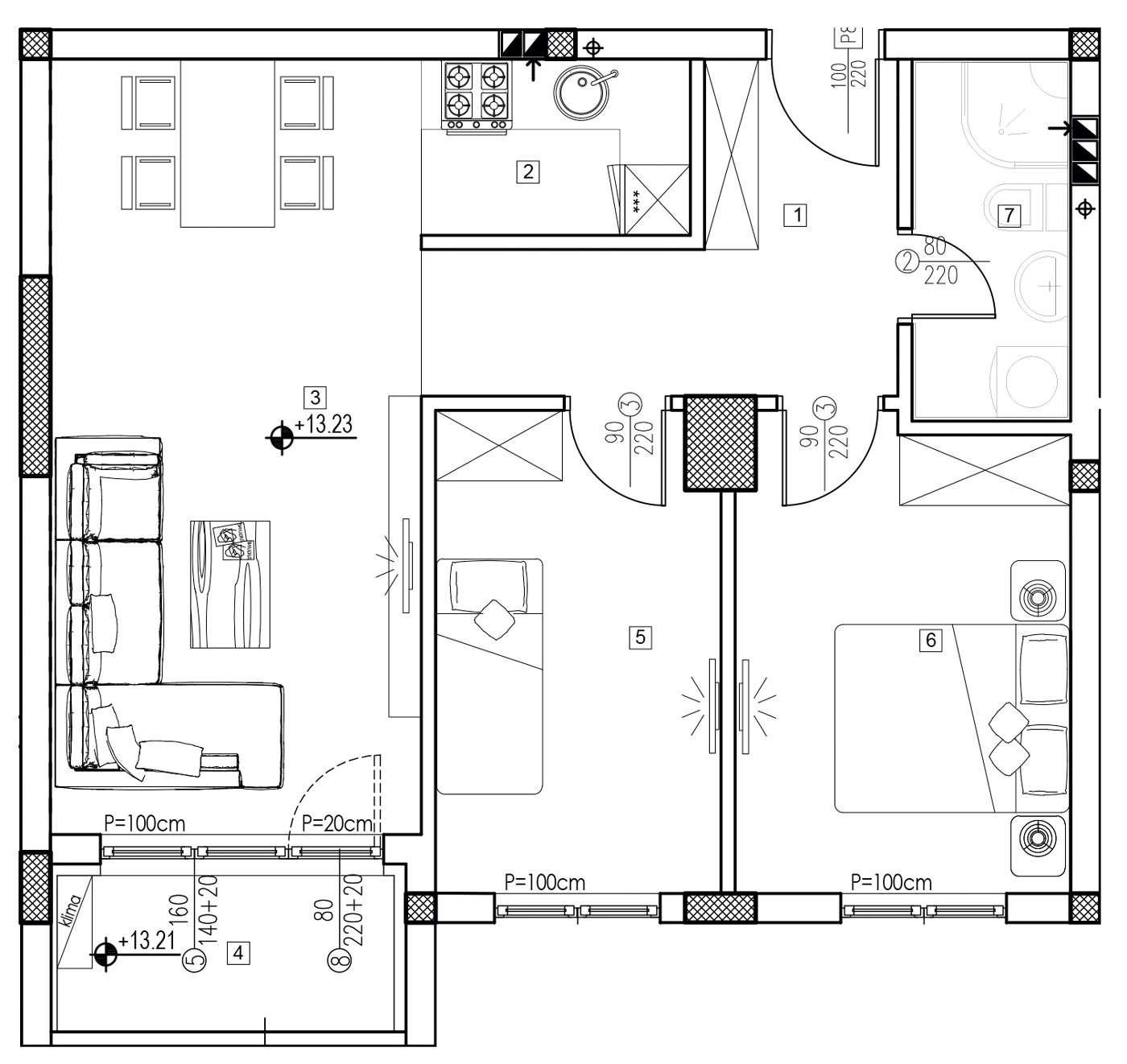
Stan Broj: 7 3 sobe 58.94 m2

  • Home
  • Detalji plana

Osnovne informacije

  • Status: Slobodan
  • Struktura: 3 sobe
  • Kvadratura: 58.94 m²
  • Sprat: IV Sprat
  • Lamela: IV Lamela

Struktura prostorija

# Prostorija m2
1 Hodnik 7.99
2 Kuhinja 3.43
3 Dnevna soba sa trpezarijom 20.83
4 Lođa 3.82
5 Spavaća Soba 9.89
6 Spavaća Soba 11.41
7 Kupatilo 4.26

Ukupna kvadratura

58.94

Trenutni status

Slobodan

Dodatne pogodnosti

  • Lift
  • Parking
  • Centralno grijanje
  • Podzemna garaža
  • Toplotna Pumpa
Lokacija objekta Promenada blok 4, Kanal Dašnica Bijeljina
Podijeli:

Kontakt

Za sva pitanja smo tu Vama na raspolaganju

O nama

Mihajlović invest doo je kompanija osnovana 2017.godine u gradu Bijeljina sa ciljem da razvije moderan koncept stanovanja uz primjenu najviših standarda u projektovanju i gradnji.

© Mihajlović Invest. Sva prava zadržana.