Promenada blok 4

Stan Broj: 4 4 sobe 77.44 m2

  • Home
  • Detalji plana

Osnovne informacije

  • Status: Slobodan
  • Struktura: 4 sobe
  • Kvadratura: 77.44 m²
  • Sprat: VI Sprat
  • Lamela: IV Lamela

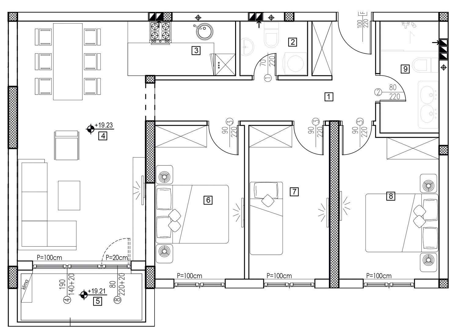
Struktura prostorija

# Prostorija m2
1 Hodnik 9.89
2 Toalet 2.89
3 Kuhinja 4.45
4 Dnevna soba sa trpezarijom 22.81
5 Lođa 4.43
6 Spavaća Soba 10.55
7 Dječija soba 9.51
8 Spavaća Soba 11.21
9 Kupatilo 5.10

Ukupna kvadratura

77.44

Trenutni status

Slobodan

Dodatne pogodnosti

  • Lift
  • Parking
  • Centralno grijanje
  • Podzemna garaža
  • Toplotna Pumpa
Lokacija objekta Promenada blok 4, Kanal Dašnica Bijeljina
Podijeli:

Kontakt

Za sva pitanja smo tu Vama na raspolaganju

O nama

Mihajlović invest doo je kompanija osnovana 2017.godine u gradu Bijeljina sa ciljem da razvije moderan koncept stanovanja uz primjenu najviših standarda u projektovanju i gradnji.

© Mihajlović Invest. Sva prava zadržana.