Promenada blok 4

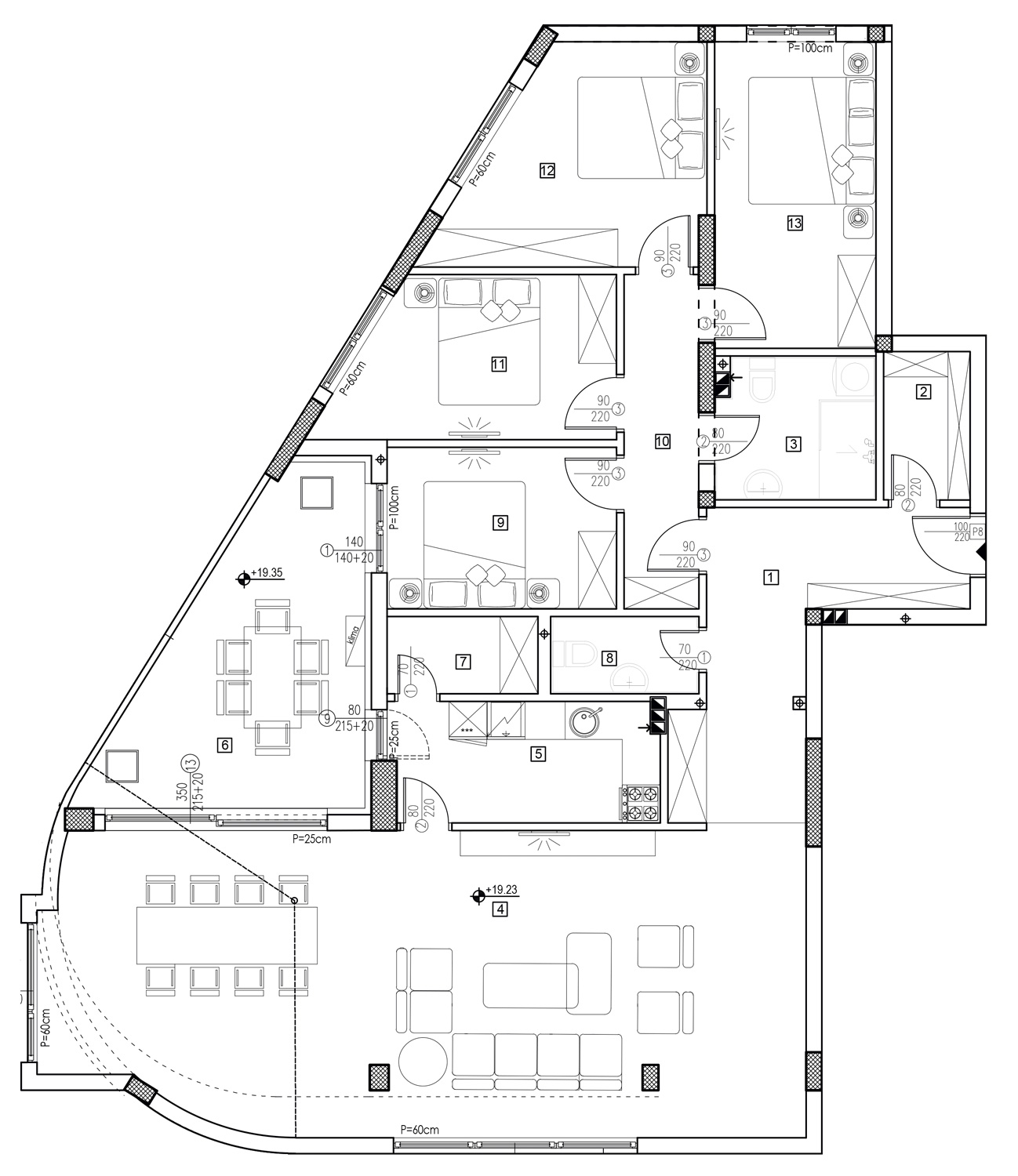
Stan Broj: 2 5 soba 152.27 m2

  • Home
  • Detalji plana

Osnovne informacije

  • Status: Slobodan
  • Struktura: 5 soba
  • Kvadratura: 152.27 m²
  • Sprat: VIII Sprat
  • Lamela: IV Lamela

Struktura prostorija

# Prostorija m2
1 Hodnik 13.27
2 Garderober 3.29
3 Kupatilo 5.83
4 Dnevna soba sa trpezarijom 56.01
5 Kuhinja 8.13
6 Lođa 16.61
7 Ostava 2.99
8 Toalet 2.94
9 Spavaća Soba 9.35
10 Degažman 6.32
11 Spavaća Soba 10.85
12 Spavaća Soba 12.60
13 Spavaća Soba 12.56

Ukupna kvadratura

152.27

Trenutni status

Slobodan

Dodatne pogodnosti

  • Lift
  • Parking
  • Centralno grijanje
  • Podzemna garaža
  • Toplotna Pumpa
Lokacija objekta Promenada blok 4, Kanal Dašnica Bijeljina
Podijeli:

Kontakt

Za sva pitanja smo tu Vama na raspolaganju

O nama

Mihajlović invest doo je kompanija osnovana 2017.godine u gradu Bijeljina sa ciljem da razvije moderan koncept stanovanja uz primjenu najviših standarda u projektovanju i gradnji.

© Mihajlović Invest. Sva prava zadržana.